LAMBUTH TOWNHOMES

Year / 2025

Location / Jackson, Tennessee

Type / Multi-family Dwelling

No. of Units /6

Unit Avg sf / 1,930 sf

GFA / 3,860 sf

Bed/Bath / 3/2.5

 

The Lambuth neighborhood in Jackson, TN, is a historic and charming district centered around the former Lambuth University, now a part of the University of Memphis system. Known for its tree-lined streets and traditional architecture, the area features a mix of older homes and newer developments, creating a vibrant and walkable community. With its proximity to downtown Jackson, Lambuth attracts residents who appreciate the blend of historic character and modern amenities, making it an ideal location for residential growth and investment.

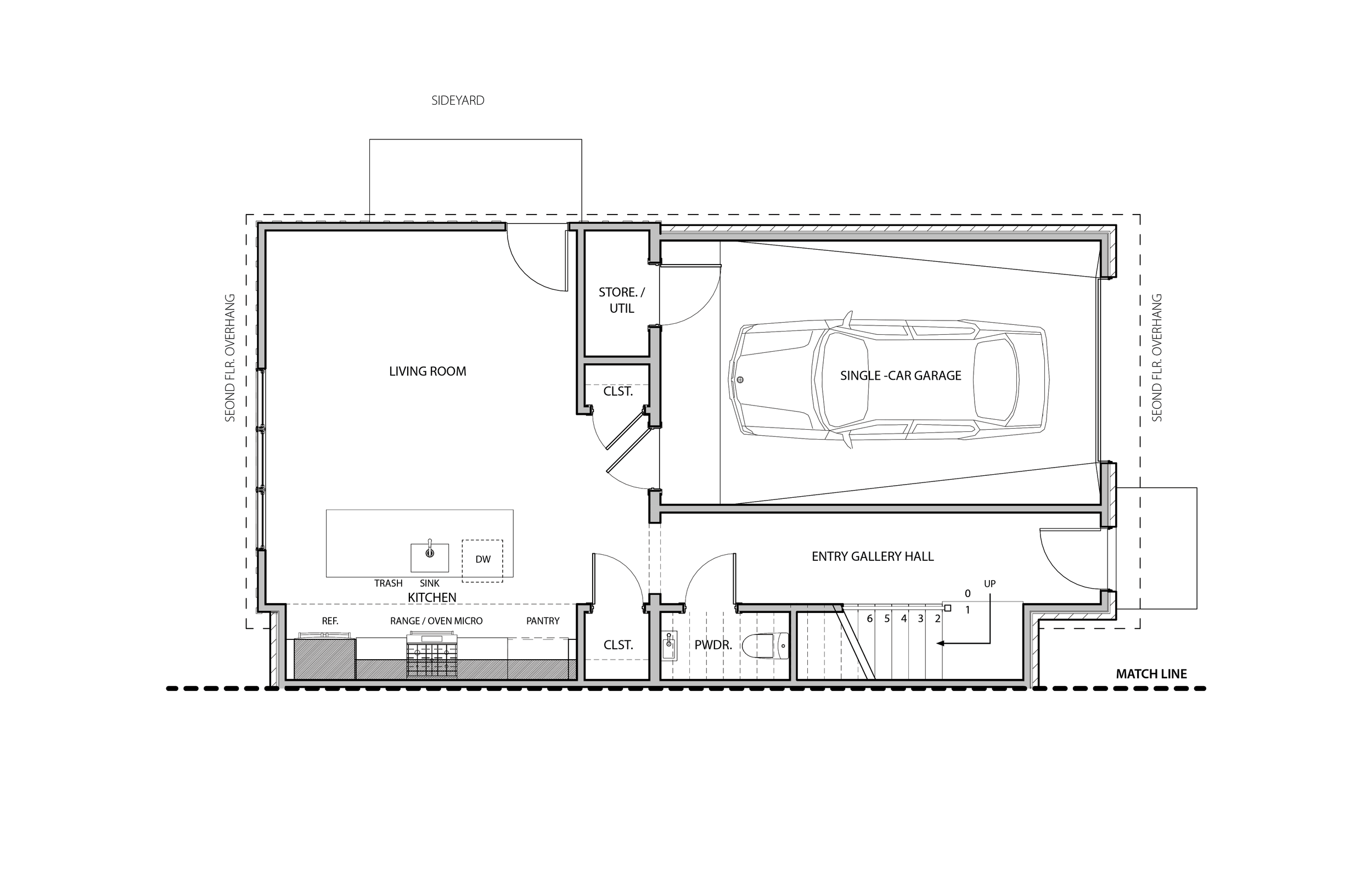
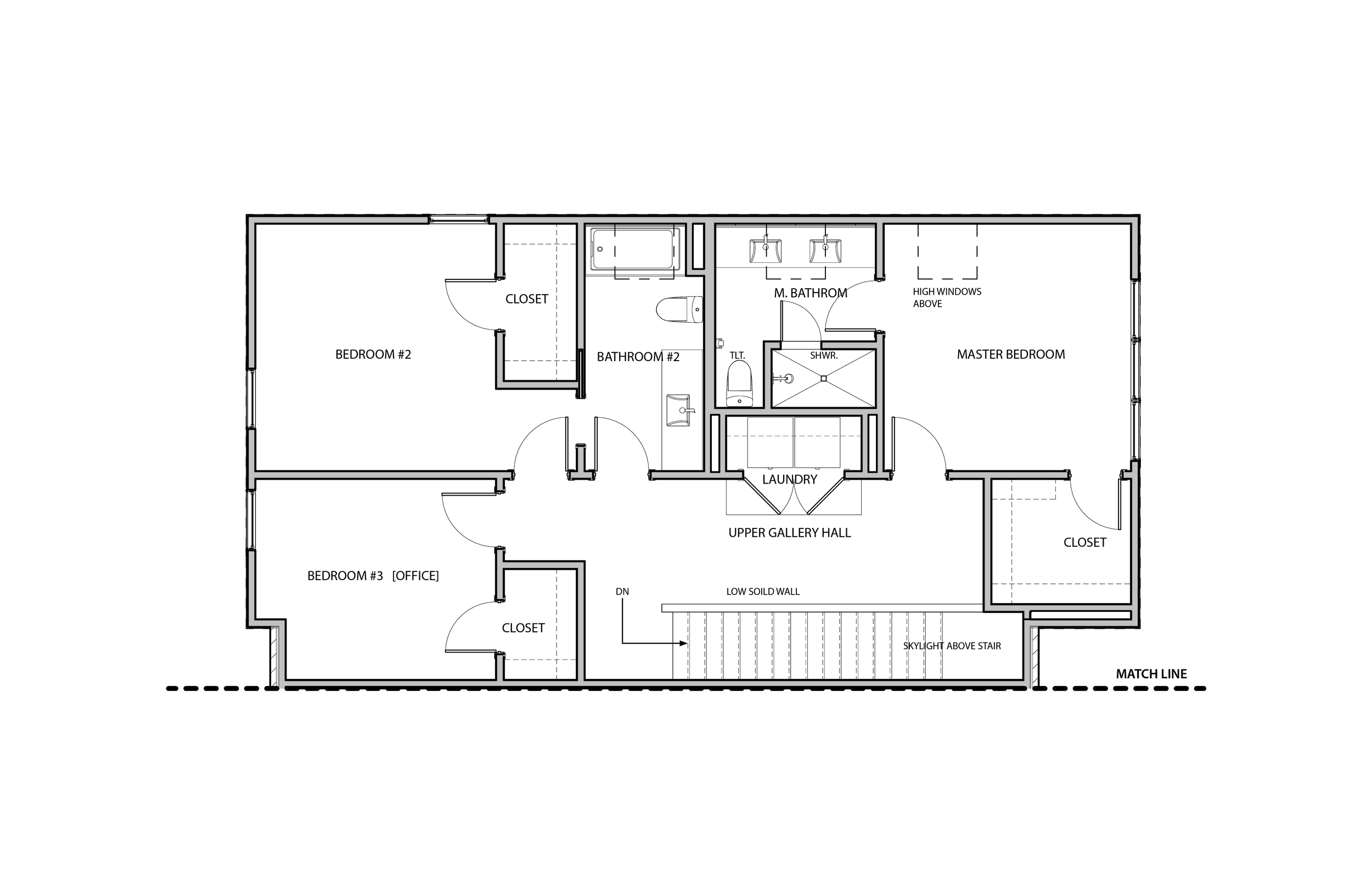
The design for [6] duplex townhomes thoughtfully integrates with the neighborhood’s character while providing contemporary living spaces. Situated at the corner of Lambuth Boulevard and Williams Street, the development consists of [3] duplex townhomes, each offering 1,500 square feet of well planned space. Every unit includes three bedrooms, two and a half baths, and a single-car garage, ensuring both functionality and comfort. The homes feature side yards for outdoor space and welcoming front yards, while major parking is conveniently located at the rear of the property. This layout maintains an inviting streetscape while optimizing accessibility, making the project a seamless addition to the evolving Lambuth neighborhood.

Previous
Previous

Prince Edward Residences